CONTACT US
智淼消防氣體滅火施工安裝公司
聯系人:何經理
服務熱線:4006-598-119
郵箱:1334605518@qq.com
電話:15262554119
地址:蘇州常熟市黃河路275號
七氟丙烷氣體滅火用量和泄壓口面積快速計算
發布時間:2026年04月08日 人氣:52 來源:本站
一、七氟丙烷滅火劑量估算
通訊機房和電子計算機房等防護區:W≈0.66×V
油浸變壓器室、帶油開關的配電室和自備發電機房等防護區:W≈0.75×V
圖書、檔案、票據和文物資料庫等防護區:W≈0.84×V
W——滅火設計用量或惰化設計用量(kg),V——防護區凈容積(m3)
注意:以上數值僅供參考,方便估算,實際用量請嚴格按照氣體滅火系統設計規范計算。
二、泄壓面積估算
Fx≈0.00054×防護區滅火劑用量
注意:以上數值僅供參考,方便估算,實際用量請嚴格按照氣體滅火系統設計規范計算。
常見產品規格

三、常見問題
容積計算的問題
建筑給水排水設計統一技術措施2021
12.4.3有吊頂及夾層的防護區容積的計算需考慮吊頂及架空層(夾層),以及通過吊頂或架空層相通的隔壁空間。
【要點說明】
防護區圍護結構所能承受的壓強不宜低于但普通吊頂及地面架空層不滿足1200Pa.此壓強要求;而變配電室內電纜溝和變配電室結構夾層可滿足此壓強要求。需分別考慮計算其防護區容積。
【措施要求】
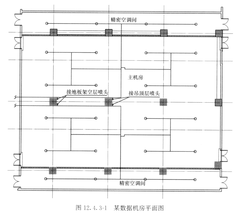
圖12.4.3-1、圖12.4.3-2所示分別為某數據機房的平面圖及剖面圖,在數據機房中經常會遇到空調間與主機房看似分隔,而架空層和吊頂層卻是相通的情況,空調系統采用下送風、上回風的氣流組織方式,此時需將空調間和主機房視為一個防護區,此防護區容積=(S空調間十S主機房)X(h吊頂層十h凈高十h架空層)。


當地板夾層滿足防護壓強要求,且夾層需要設置氣體滅火系統保護時,防護區容積需分別計算機房容積及夾層容積。如果實體可移動物體的總體積達到或超過凈容積的25%,需最終確定凈容積。如果實體可移動物體的總體積小于凈容積的25%,則不會對滅火濃度有很大影響,不用從凈容積中減去該物體的體積。
泄壓口設置高度問題
12.4.6泄壓口的設置
泄壓口高度設置要求中的防護區凈高為本層地面標高至上層板底的高度。
"氣滅規"第3.2.7條規定"防護區應設置泄壓口,七氟丙烷滅火系統的泄壓口應位于防護區凈高的2/3以上"
當防護區有地面架空層及吊頂時,架空層及吊頂層不能滿足防護壓強要求時,防護區凈高應為h吊頂層十h凈高十h架空層;當防護區夾層地板可滿足防護壓強要求時,防護區凈高為機房地面到機房頂板板底的高度,夾層泄壓口通過檢修孔設置,泄壓至機房防護區。泄壓口設置高度指的是泄壓口下邊緣高度。
常用氣體滅火系統泄壓口面積
當防護區的圍護結構為一次結構時,施工圖設計階段就應考慮泄壓口的預留;
當防護區的圍護結構為二次結構時,可由二次深化設計承包商提出泄壓口的面積要求。
初步配合可參照表12.4.6提資。
防護區的泄壓口應設置泄壓裝置,其泄壓壓力應低于圍護構件最低耐壓強度的作用力。
不應在防護區墻上直接開設洞口作為泄壓口或在泄壓口中設置百葉窗結構,因為這些措施都屬于泄壓口常開狀態,沒有考慮到滅火時需要保證防護區內滅火劑濃度的要求。應在防護區墻上設置能根據防護區內的壓力自動打開的泄壓閥。

四、設計使用量計算
一、七氟丙烷的滅火設計用量的計算主要依據GB50370-2005《氣體滅火系統設計規范》第3.3.14條,防護區滅火設計用量,應按下式計算:
W=K×V×C1/S×(100-C1)
上式中
W——滅火設計用量(Kg);
C1——滅火設計濃度(%);
S——滅火劑過熱蒸氣在101kPa大氣壓和防護區最低環境溫度下的質量體積(m3/Kg),S=0.1269+0.000513×T(T—防護區最低環境溫度);
V——防護區的凈容積(m3);
K——海拔高度修正系數,可參照下表取值。

將公式進行簡化,讓您快速算出滅火設計用量
當防護區最低環境溫度為20℃時,
S=0.1269+0.000513×T=0.1269+0.000513×20=0.13716(m3/kg);
2.當防護區所在地海拔為0(即K=1)時,
1)若防護區為通訊機房和電子計算機房等,C1即為8%:
W=K×V/S×C1/(100-C1)=1×V/0.13716×8/(100-8)=0.63397V≈0.634×V
假設每100kg,鋼瓶內殘余量為3kg,折算后得到W=0.66×V
2)若防護區為油浸變壓器室、帶油開關的配電室和自備發電機房等,C1即為9%:
W=K×V/S×C1/(100-C1)=1×V/0.13716×9/(100-9)=0.72106V≈0.721×V
假設每100kg,鋼瓶內殘余量為3kg,折算后得到W=0.75×V
3)若防護區為圖書、檔案、票據和文物資料庫等,C1即為10%:
W=K×V/S×C1/(100-C1)=1×V/0.13716×10/(100-10)=0.81008V≈0.810×V
假設每100kg,鋼瓶內殘余量為3kg,折算后得到W=0.84×V
五、防護區的泄壓口面積,宜按下式計算:

式中Fx——泄壓口面積(m2);
Qx——滅火劑在防護區的平均噴放速率(kg/s);
Pf——圍護結構承受內壓的允許壓強(Pa)。
根據規范3.2.6防護區圍護結構承受內壓的允許壓強,不宜低于1200Pa,則Pf取值一般為1200。防護區的平均噴放速率Qx=設計用量/噴射時間。
3.3.7在通訊機房和電子計算機房等防護區,設計噴放時間不應大于8s;在其它防護區,設計噴放時間不應大于10s。噴放時間8至10秒,按最小的8秒取值。
則泄壓口的計算公式如下:

以上為滅火劑用量與泄壓口大小的快速估算方法。
上一篇:七氟丙烷氣體滅火系統系列-安裝篇
下一篇:氣體滅火安全泄放裝置試驗程序
最新產品
相關新聞
- 紹興氣體滅火安全泄放裝置試驗程序2026-04-15
- 紹興七氟丙烷滅火系統專用組件外形圖2026-04-15
- 紹興氣體滅火主機安裝位置有規范要求嗎2026-04-11
- 紹興氣體滅火控制盤安裝高度問題2026-04-11
- 紹興七氟丙烷氣體滅火用量和泄壓口面積快速計算2026-04-08
- 紹興發電機房氣體滅火系統“形同虛設” 深度分析2026-04-08
- 紹興數據中心消防市場高增長下,為何依舊首選氣體滅火?2026-04-03
- 紹興氣體滅火系統工程消防驗收現場評定常見9個問題2026-03-28
- 紹興泰和安消防氣體滅火系統如何接線2026-03-28
- 紹興氣體滅火裝置怎么聯動火災報警系統2026-03-26



服務熱線:4006-598-119 18751140119
地址:蘇州常熟市黃河路275號
客服 